Questões sobre produto notável
Questão 1
MatemáticaFEMA2019Sejam x e y números reais tais que xy = 6 e x2 + 4y2 = 40.
Dessa forma, o valor de (x + 2y)2 é:
Questão 2
MatemáticaESPM2019O número que se deve somar a 456788² para se obter 456789² é
Questão 3
MatemáticaUECE2015Se a expressão algébrica x2 + 9 se escreve identicamente como a(x + 1)2 + b(x + 1) + c onde a, b e c são números reais, então o valor de a – b + c é
Questão 4
MatemáticaFPP2017O valor da expressão 12345. 12345 – 12346. 12344, é igual a:
Questão 5
MatemáticaFAG2017Considere as sentenças a seguir: I. (3x - 2y)2 = 9x2 - 4y2 II. 5xy + 15xm + 3zy + 9zm = (5x + 3z). (y + 3m) III. 81x6 - 49a8 = (9x3 - 7a4) . (9x3 + 7a4) Dessas sentenças, SOMENTE
Questão 6
MatemáticaUFRGS2017Se x - y = 2 e x2 + y2 = 8, então x3 - y3é igual a
Questão 7
MatemáticaIFRR2017Lucas e Fábio são grandes amigos e gostam muito de matemática. Lucas pediu a Fábio que escolhesse dois números naturais distintos, ambos maiores que 873, e fizesse a seguinte operação matemática: x = (p + q)2+ (p − q)2.
Sabendo que p e q são os números escolhidos por Fábio, então, é correto afirmar que:
Questão 8
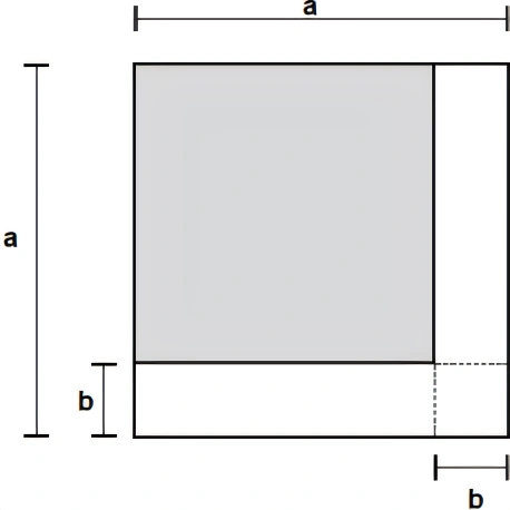
MatemáticaUnirG2020No livro intitulado “Elementos”, do matemático grego Euclides de Alexandria (300 a.C), há um quadrado de lado α, a partir do qual Euclides procura encontrar a área de outro quadrado, destacado em cinza, na figura a seguir.
Desse modo, a área do quadrado destacado em cinza na figura é obtida pela expressão:
Questão 9
MatemáticaIFNMG2016O valor de 987x456+544x987 é:
Questão 10
MatemáticaUFRGS2016Se x + y = 13 e x· y = 1, então x2 + y2 é